发烧论坛

注册

 

返回列表 «56789101112» / 20
发新话题 回复该主题

大空间,大乐趣,听音室工程,正式开工..... [复制链接]

查看: 94221|回复: 191
81#

回复: 小空间,大乐趣,听音室工程筹备中....

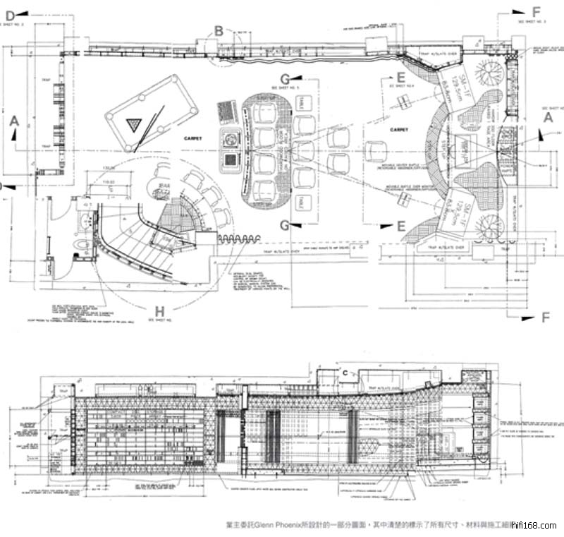
下面这间就是WESTLAKE的老板手笔。客户是台湾的陈生。
chens_listening_room_1.jpg (, 下载次数:60)

jpg(2008/3/26 10:29:39 上传)

chens_listening_room_1.jpg

chens_listening_room_2.jpg (, 下载次数:19)

jpg(2008/3/26 10:29:39 上传)

chens_listening_room_2.jpg

chens_listening_room_3.jpg (, 下载次数:82)

jpg(2008/3/26 10:29:39 上传)

chens_listening_room_3.jpg

音响的乐趣,在于演奏。
欢迎到访我的博客http://adam.lee.vip.blog.163.com/
累的时候听着音乐睡一会,闲的时候搞搞音响乐在其中。
TOP
82#

回复:小空间,大乐趣,听音室工程筹备中....

花了两万美金设计费就设计成这样?

我看西湖老板还是回去做喇叭更内行些
最后编辑mackiel 最后编辑于 2008-03-26 10:37:04
TOP
83#

回复:小空间,大乐趣,听音室工程筹备中....

WESTLAKE出的是声学设计图,装饰的配色那就是业主自己的选择。
音响的乐趣,在于演奏。
欢迎到访我的博客http://adam.lee.vip.blog.163.com/
累的时候听着音乐睡一会,闲的时候搞搞音响乐在其中。
TOP
84#

回复: 小空间,大乐趣,听音室工程筹备中....

原帖由 东莞肥仔 于 2008-3-26 10:25:00 发表
迷糊兄,还是委托专业的技师来规划设计吧。这笔费用不能省,鸡都买了酱油不能省啊! 自己最紧要搞清楚要什么。

譬如,JBL或WESTLAKE专业的设计师。不过听说收费不菲(USD20,000/间)


一定要找专业设计师的,不过我不想把听音室搞成那种看起来很专业的样子,我需要的是一个有家庭氛围的综合娱乐室,有影院、有音乐、有酒吧、可以洗澡、可以休息.....

怎样把声学与装饰很好的结合起来,是个不小的难题,处理起来容易顾此失彼,尽量找那个接近完美的平衡点吧。
过你热爱的生活
TOP
85#

回复:小空间,大乐趣,听音室工程筹备中....

这是一个巨大的工程,要好好理清头绪、、、。先搞个计划书出来,再分步实施。
音响的乐趣,在于演奏。
欢迎到访我的博客http://adam.lee.vip.blog.163.com/
累的时候听着音乐睡一会,闲的时候搞搞音响乐在其中。
TOP
86#

回复:小空间,大乐趣,听音室工程筹备中....

真是大手笔啊!!!!
TOP
87#

回复: 小空间,大乐趣,听音室工程筹备中....

原帖由 东莞肥仔 于 2008-3-26 10:39:00 发表
WESTLAKE出的是声学设计图,装饰的配色那就是业主自己的选择。


西湖老板亲自设计的,声音肯定没问题,只是这装修......个人喜好不同吧,我对这间听音室的装修风格真是不太感冒。
过你热爱的生活
TOP
88#

回复:小空间,大乐趣,听音室工程筹备中....

够您忙的,估计得外请设计师.大连当地发烧氛围不是很浓,这次应起个很大的带头作用.:victory:
TOP
89#

回复:小空间,大乐趣,听音室工程筹备中....

哇!这个厉害了,羡慕迷糊兄啊!
不知迷糊兄把这个地方纯粹当家使,还是做店铺营业啊?
TOP
90#

回复: 小空间,大乐趣,听音室工程筹备中....

原帖由 TRIGON 于 2008-3-27 23:00:00 发表
哇!这个厉害了,羡慕迷糊兄啊!
不知迷糊兄把这个地方纯粹当家使,还是做店铺营业啊?


不对外营业,乱哄哄的,多闹人,还是留给自己玩吧~
过你热爱的生活
TOP
发新话题 回复该主题