发烧论坛

注册

 

返回列表 «23456789» / 26
发新话题 回复该主题

(拜访站33)实例改造完美HIFI新环境---中山小揽HIFI何单拿情结! [复制链接]

查看: 95445|回复: 252
51#

回复: (拜访站33)实例改造完美HIFI新环境---中山小揽HIFI何单拿情结!

原帖由 烧不死 于 2008-11-11 23:05:00 发表
继续关注乐林8 兄的好文章。我的器材也直接在石材板上放着,听起来也有冷的感觉。请问乐林建议何兄在石材板上放了什么?
我不建议器材全部用石材垫起,一定要有别的物料作缓冲才好声,例如石板+木制垫钉、木制机架+石板等。
TOP
52#

回复: (拜访站33)实例改造完美HIFI新环境---中山小揽HIFI何单拿情结!

原帖由 HE.R 于 2008-11-11 17:58:00 发表
多谢!天神兄.有空多指教呀..  
兄有高人相助,已经无须指教啦,哈哈,我等学习才对。
TOP
53#

回复:(拜访站33)实例改造完美HIFI新环境---中山小揽HIFI何单拿情结!

他还另有头家,仍需指教哩。
壮士豪情怀天下
英雄仗义本无名

江门市青年音响爱好者协会
TOP
54#

回复: (拜访站33)实例改造完美HIFI新环境---中山小揽HIFI何单拿情结!

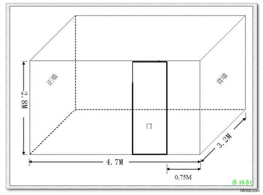
无偿帮HIFI何测量计算,并画了个图纸给予施工,他热烈的破土折腾了一番,给他带来信心和力量。
环境原始图示!
未命名1(1).jpg (, 下载次数:499)

jpg(2008/11/12 16:39:17 上传)

未命名1(1).jpg

TOP
55#

回复: (拜访站33)实例改造完美HIFI新环境---中山小揽HIFI何单拿情结!

施工实例图示!顶部独立!两则墙的墙纸按照个人喜欢色调去自由选择,不要太花草就行.
TOP
56#

回复: (拜访站33)实例改造完美HIFI新环境---中山小揽HIFI何单拿情结!

实施图示2.后墙以简单实用美观为主.
TOP
57#

回复: (拜访站33)实例改造完美HIFI新环境---中山小揽HIFI何单拿情结!

这个环境之前听过测过,还是驻波,定位,音场,结像的问题。想提高中央结像高度,音箱后墙这面墙一定要会处理才能得到,往往环境的长度不足,一般定位都是很低的,要想提高定位,真是各人施各法了,有的利用小扩散,我是通过实践得到一个方案,那就是音箱后墙这面墙要做微型扩散,而且要会利用材料本身的特性,使后墙受声面反弹出均匀的声波,让定位及结像更高,音场更加深及宽广,让纵深度达到理想状态。小环境最担忧的是宽广度及深度不足,这就要利用微扩散,加上小环境长度不足,音箱后墙更加要利用带有一定软调的,不重吸音的微型扩散条了。上面说到通过实践比较,我得到了一个较为理想的方案:那就是就是利用石膏条压摸成型(或者说希酸钙板)厚度为15厘。宽度为47CM。高度为2.5米。用它带深浅条形状的微型均匀扩散面起到漫反谢的作用,实践几间环境收到良好的效果。有人问为何要利用石膏板而不用木条板呢?因为石膏板属半硬半软材质,要相比利用软质木心板还要好。而且石膏板价又平宜(每块才30元,用不了多少块的),只用对频率的,不用贵的而有负面作用的。因为尊照“前硬”原理(有人说软好,有人说硬好:近来比较争议的话题),环境太短加上后墙如果太硬太光滑,侧声波会反弹比较利害而干扰人耳,使定位也会变低,后墙也会受干扰,音场宽度会不足。所以要用石膏条板可以解决这一个问题。还有一个原因就是软质木心板容易吸收中频段,听音时中频段饱满是非常重要的,故避开木心板而用石膏条板,石膏条板由于质量较重,稍吸的频率往低端的频率部分,对吸高的频率影响很少,对我们中小环境的负面影响比较小,再者,石膏条板是防火材料,色光好,用久不容易变色和变味,比较安全。(同在125HZ时石膏条板可吸收一些中低频驻波,而木心板吸的系数很低,而在250HZ时石膏条板吸的音频降低了,而木心板吸的系数很高,对中高频吸的过重,在500HZ时木心板吸的系数更高)。为了使后墙尊照“前硬”原理,使石膏条板既半硬半软,又不让石膏条板吸音,那施工中就是重点中的重点项目了,如何施工?就是要求石膏板与墙面之间不留任何空隙,就如彻砖墙那样(砖与坭吻合),石膏条板用进口石膏粘粉膏批平紧压于火砖墙壁上定型而成,不留任何空隙,这就起到了很好的扩散兼阻尼及漫反谢的作用了,完全达到理想的半硬半软后墙状态了。而听感分存相当均匀入味。
TOP
58#

回复: (拜访站33)实例改造完美HIFI新环境---中山小揽HIFI何单拿情结!

原帖由 audio 于 2008-11-12 10:07:00 发表
努力赚钱,就有享受。



对了有金钱.就可再一级!哈..
TOP
59#

回复:(拜访站33)实例改造完美HIFI新环境---中山小揽HIFI何单拿情结!

现有点明白了 .

原乐林兄.指定我一定这样做.是有这么多内容文章.
TOP
60#

回复 59F HE.R 的帖子

何兄,我的听音室和你的差不多大,以后基本可以原样复制了
哈,真的感谢乐林兄了!请乐林兄介绍越详细越好
TOP
发新话题 回复该主题