发烧论坛

注册

 

发新话题 回复该主题

请教各位,,,, [复制链接]

查看: 5825|回复: 22
1#
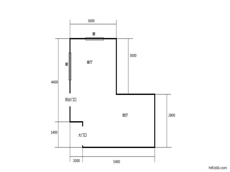
请大家给点意见,此L型厅如何摆放器材听音乐,才比较理想。谢谢!
现系统:马兰士CD17MKIII,美星KT88胆机,丹拿DM2/7音箱。
1.jpg (, 下载次数:1)

jpg(2013/10/12 15:37:32 上传)

1.jpg

L型厅 - 副本.png (, 下载次数:2)

png(2013/10/12 15:42:36 上传)

L型厅 - 副本.png

L型厅 - 副本.png (, 下载次数:6)

png(2013/10/12 15:47:04 上传)

L型厅 - 副本.png

最后编辑多半度 最后编辑于 2013-10-12 15:56:45
分享 转发
TOP
2#

真晕,重发了那么多图片。
TOP
3#

我的想法是这样

图示:
20131012.jpg (, 下载次数:0)

jpg(2013/10/12 16:07:26 上传)

20131012.jpg

TOP
4#

回复 3# 嘀咕 的帖子

这样摆放,后墙左右不对称,会不会不平衡呢?
TOP
5#

可以有两种解决办法:
1、左侧阳台门处拉厚窗帘,用强吸音造成与右侧空位大致相同的效果
2、右侧摆放挡板,让左右两侧的反射大致相等
TOP
6#

回复 5# 嘀咕 的帖子

多谢兄弟回复。
TOP
7#

回复 5# 嘀咕 的帖子

请问嘀咕兄?如果器材摆在左侧阳台长边,效果如何呢?这样大厅的活动空间会宽敞很多,也方便点。
TOP
8#

摆放在阳台长边最大的问题是进出阳台不方便,容易碰到器材
如果把器材尽量远离门口摆放的话,同样又有左右不对称的情况,对不对?
TOP
9#

回复 8# 嘀咕 的帖子

感谢兄弟回复,
也是,遇到这样厅,挺头大的。
TOP
10#

只能适可而止的玩,因为这样的环境不能作为好声音的空间的。
TOP
发新话题 回复该主题