发烧论坛

注册

 

发新话题 回复该主题

准备搞个听音房 [复制链接]

查看: 21423|回复: 56
1#
近期装修,
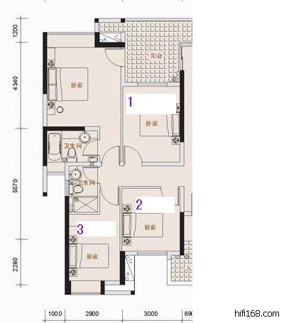
准备搞个听音房,兼作书房用,可以选的房间有1\2\3(见图)
我想选1,
另外请有经验的大侠说说注意事项...
000.JPG (, 下载次数:2)

jpg(2009/10/14 11:13:56 上传)

000.JPG

分享 转发
TOP
2#

回复 1# 业 的帖子

选1的话,面积大些,,但窗户靠阳台,挡了些光,光线没有2\3的房好,作书房赚暗了点.
选2\3的话,光线好很多,但面积都小于10平方
TOP
3#

原来房子的线路开发商已经拉好了
TOP
4#

图有点小。。。
CLK发烧信号线!
淘宝: http://shop35466467.taobao.com
TOP
5#

自己要选好空间先
TOP
6#

1比较好,面积大,比例好!
QQ:420865344
家电论坛:华韵
TOP
7#

1好,看一去大一点,正气一点,把阳台打通,增加点面积更好。
TOP
8#

如果是偶的话,原卧室+卫生间作音响房,卧室3作原卧室。呵呵
手如柔荑 膚如凝脂 領如蝤蠐 齒如瓠犀 螓首峨嵋 巧笑倩兮 美目盼兮
TOP
9#

原帖由 lovehiend 于 2009-10-14 13:00:00 发表
1好,看一去大一点,正气一点,把阳台打通,增加点面积更好。


可惜有卫生间有黑线改不了,我认为1连阳台和卧室相连就好。
TOP
10#

1房,,,尺寸大约3X3.8米
TOP
发新话题 回复该主题